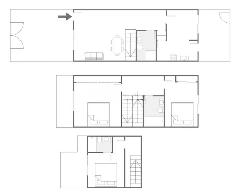
Ideal casa adosada con terraza orientación al sur equipado con toldos, acceso directo a la piscina comunitaria desde la parte trasera de la vivienda y con garaje incluido en el precio. Al entrar a la vivienda en la planta baja tenemos un amplio salón/comedor, un cuarto de baño con ducha, una cocina completamente equipada con una zona de comedor y a su vez da salida a un porche con techo movible que da salida a la zona comunitaria y a la piscina comunitaria. Subiendo a la planta de arriba tenemos un amplio dormitorio con salida a un balcón y armario empotrado, un cuarto de baño equipado con ducha y otro dormitorio con armario empotrado. Al subir a la siguiente planta tenemos un amplio dormitorio con cuarto de baño equipado con ducha en suite y con salida a un solario.
Esta información que se proporciona aquí está sujeta a errores y no forma parte de ningún contrato. La oferta se puede cambiar o retirar sin previo aviso. Los precios no incluyen los costes de compra
Calificación energética:
En proceso